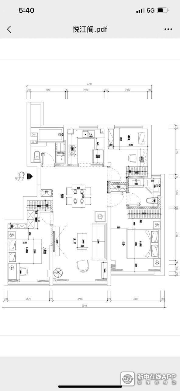
第25季:【悦江阁】温馨小家变形中 11.9更新:完工一身轻,比预算增加差不多6、7w
- 所在小区:悦江阁小区
- 套内面积:74(平米)
- 新房户型: 三房
- 开工日期: 2021-5-16
- 装修方式: 半包
- 装修预算: 17-18(万)
- 装修风格: 现代简约
- 装修公司: 明家装饰 (无装修公司的填自装)
![]()

浙中在线
在金华,装这个app就够了
![]()
图片:139_3248101_1622502828133782.jpg

:所在小区:小区
套内面积:(平米)
新房户型:
装修预算:万 (万)
装修风格:
....... (2021-06-01 09:20)
评论
评论






评论
评论
评论
评论
评论



评论
评论













评论
来说两句吧 ...
点此查看全部 127 条神评论>>
老蒋人丁兴旺
2026-01-25 09:21 举高了

宁波许洛熙事件,大家都知道吗
2026-01-25 16:16 凉风有月

有人会去垃圾箱后面休息吗?
2026-01-25 16:48 与你为友

当马年的朝气邂逅侨商的担当, 当行业的远见碰撞时代的脉搏, 这场年度盛会,藏着新一年的无限可能。 诚邀全球侨商精英,共赴金华, 策马扬帆,共启属于我们的辉煌新篇!#为今天拍张照片#
不同088
江北电梯顶复,拓展面积多,还带车位,一字开头,有感兴趣的扣在评论区哦
杨会强
欢迎关注浙中在线金哇圈!
锅底上善若水
欢迎关注浙中在线金哇圈!
涛宝
欢迎关注浙中在线金哇圈!
涛宝
欢迎关注浙中在线金哇圈!
涛宝
我为什么要没苦硬吃啊?带孩子爬山,孩子不辛苦,结果自己累的够呛![]()
小曾同学
这世界我来过,我努力过,我奋斗过,我,没有遗憾!
浙江金华小九妹
欢迎关注浙中在线金哇圈!
涛宝
欢迎关注浙中在线金哇圈!
和尚银
浙中在线小红娘
97年,160,客服
浙中在线小红娘
95年,158,个体户
浙中在线小红娘
95,172,行政
浙中在线小红娘
94,175,国企
浙中在线小红娘
90,183,事业编
浙中在线小红娘
94,180,公务员