立即下载
浙中在线 | 装修大本营 |
2021-09-25

第25季:【保集外滩】 140平现代简约预算50W,9.28更新:户型设计图和砌墙过程,对明家印象不错

lxlsyz
8620 44
所在小区:保集外滩
套内面积:140 (平米)
新房户型:三居室
开工日期:2021-9-9
装修方式:全包
装修预算:50 (万)
装修风格:现代简约
装修公司:明家装饰 (无装修公司的填自装)
本帖价值:140平两房设计,50W预算,现代简约风格,最终什么效果?
都传装修公司很坑?本人亲自体验全包。是以讹传讹还是确有其事?最后给你答案。
有空会更新(不喜勿喷)


全部评论 默认

我来说两句

  • 沙发自己抢
    1楼 2021-09-25 10:38

    评论

  • 9月14-16 敲墙






    2楼 2021-09-25 10:53

    评论

  • :我也是明家全包,多多交流 (2021-09-25 13:22) 


    3楼 2021-09-26 07:57

    评论

  • :140平50万,价格不是一般的高了 (2021-09-25 21:37) 


    价格没底,光全屋定制都可以搞到50
    4楼 2021-09-26 08:02

    评论

  • :看了楼主的帖子,我再也想自主装修了,16万装成这幅鬼样!累的要死还,鬼米着……
    [qf_video w=720 h=1280 poster=https://pic.app.0579.cn/front1_1_lg2S7UHZszBkjAbAFhxNlxc2r3Pf.1632581475.mp4?vframe/png/offset/0]https://pic.app.0579.cn/front1_1_lg2S7UHZszBkjAbAFhxNlxc .. (2021-09-25 22:52) 


    想表达什么
    5楼 2021-09-28 11:18

    评论

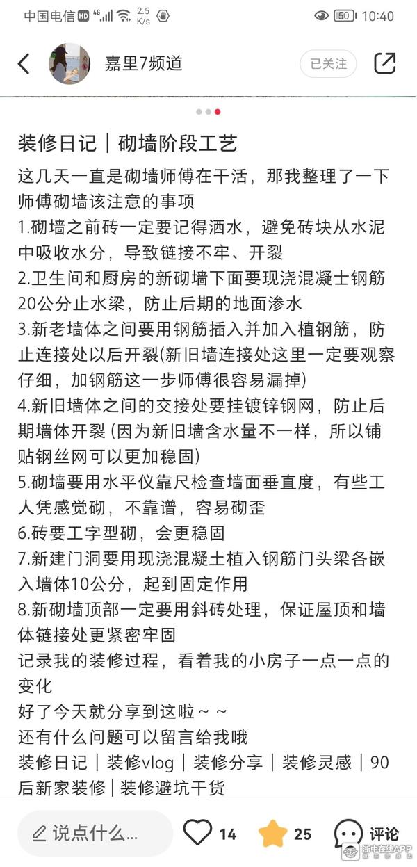
  • 9月22日—9月29日砌墙
    项目经理派的砌墙师傅人很实在。对明家固定班组,材料统一配送印象不错。




    6楼 2021-09-28 11:21

    评论

  • 小红书上做的砌墙功课

    7楼 2021-09-28 11:23

    评论

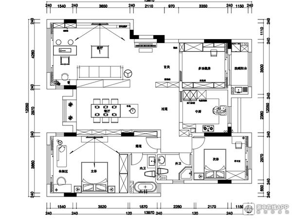
  • 附:户型设计图。
    预算说明:50万是总预算。明家半包13万,主材13万(可灵活增、删。如卫生间主材全部自己另选,主材13万中的卫生间这块费用可全部剔除。)

    8楼 2021-09-28 11:31

    评论

大家都在看
最热金哇圈

童趣

小曾同学

5

天天签到,领取专属福利

ooop12

4

我有一朋友,从他接送他儿子上小学的时候就是我的客户也是我的朋友,直到现在他又在接送他孙女儿上小学。有次他来我店小坐:“老丁,你看我孙女儿读书多聪明!门门都是第一名!你知道我那儿子读书时成绩多差?!后来上了个职高,玩游戏把眼睛玩坏,当兵都当不上…我认为他完了,可后来找了个这中心医院本科毕业的医生的当老婆,连小孩都这么聪明!”

ddy8088

1

金华悦跑团“彩虹绳”志愿者助盲跑打卡(2026.1.24) #金华光能视障跑团#金华悦跑团彩虹绳志愿者#一起用脚步丈量世界#用信任超越黑暗#逐光而遇沐光而行

三匠苹果

1

哦吼,独栋大别野哦,花园都有三四百个平方啦,而且四字不到哦,三字开头,房子上证都500多个平方哦,而且优化还有窗户都已经做过了哦,心动嘛?心动赶紧行动吧

杨会强

1

欢迎关注浙中在线金哇圈!

涛宝

88

#原创书法#

丰氏好男儿

88

欢迎关注浙中在线金哇圈!

和尚银

88

欢迎关注浙中在线金哇圈!

和尚银

88

欢迎关注浙中在线金哇圈!

和尚银

88

触屏版 / 电脑版
分享成功