浙中在线 | 装修大本营 |
2022-08-15
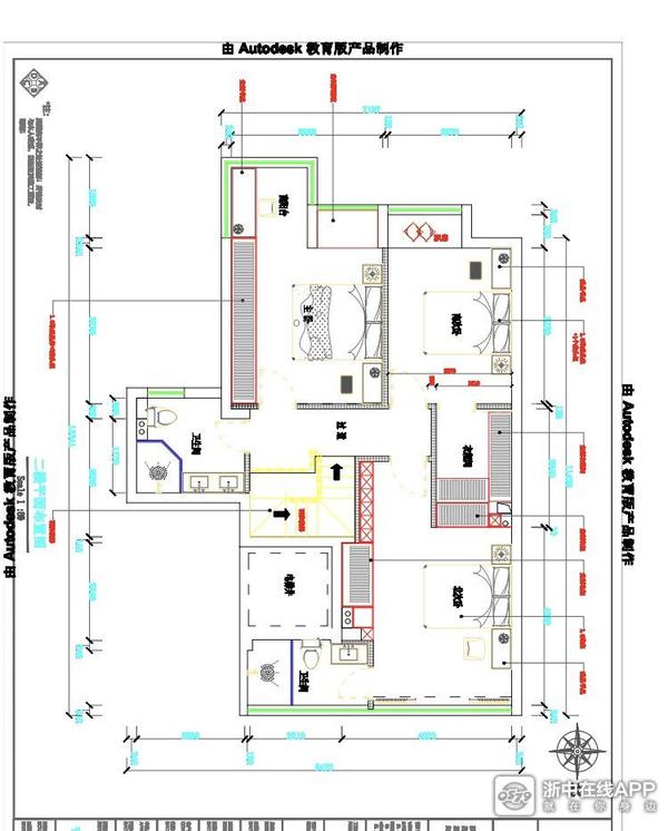
第26季:【茂新璟园】小金的装修日记,自装170方美式风~8.1开工,今天开始水电啦
t7016520996
6226
23
| 所在小区: | 茂新璟园 |
|---|---|
| 套内面积: | 170 (平米) |
| 新房户型: | 复式 |
| 开工日期: | 2022-8-1 |
| 装修方式: | 清包 |
| 装修预算: | 50 (万) |
| 装修风格: | 美式 |
| 装修公司: | 自装 (无装修公司的填自装) |
后面开始砸砸砸,把能砸的全砸了
毕竟房价这么贵,不能浪费每一平
期待期待
![]()
![]()
![]()
![]()
![]()
![]()
![]()
![]()
![]()
![]()


我来说两句












来说两句吧 ...
点此查看全部 23 条神评论>>





迅哥兒
迅哥兒
迅哥兒
山青
毛敏敏
黄艳
一串数字
老猪乖乖
和尚银
和尚银




