【大木匠全屋定制杯】第24季【绿城御园】173平 向往自然,原木家园,3.7更新:吊顶基本竣工,橱柜和房门复量也开始了。
| 所在小区: | 绿城御园 |
|---|---|
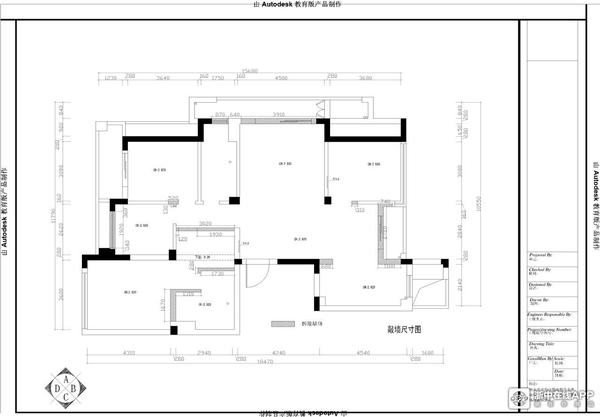
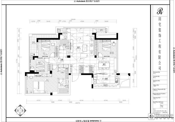
| 套内面积: | 173 (平米) |
| 新房户型: | 四居室 |
| 开工日期: | 2020-9-26 |
| 装修方式: | 半包 |
| 装修预算: | 55万 (万) |
| 装修风格: | 混搭风 |
| 装修公司: | 润宅 (无装修公司的填自装) |
房子闲置了很多年,真正下定决心要装还是暑假。10年前,我们顶着烈日,骑着二轮摩托车来往于建材市场,大到水泥瓷砖,小到五金件,全都亲力亲为采购,短短三个月就装好了婚房。可入住后才发现由于工程纰漏出现渗漏,之后又换房买房,对新房装修总怀着一丝不安。当初卖了婚房才看了三天就定了御园,因为有前车之鉴,害怕装修的繁琐,所以房子空置了五年,交了不少物业费和车位管理费。身边的很多朋友入手比我晚,却都已入住,他们催我早点装可以做邻居。但促使我真正动工的原因是,目前住的房子楼层高,爬楼对老年人不友好,上半年我的母亲膝盖不好,上楼特别辛苦,想想还是把御园装起来吧。
下定决定装修后就开始物色装修公司,这次不敢清包了,也没有时间和精力,把房子交给专业的人,事半功倍。先后看了三家装修公司,最后定了润宅。第一次量房,潘总非常准时,给我留下好印象,第二次接触也是,每次都很准点。设计方案的沟通很顺利,9.20签好合同,润宅的半包价格涵盖了很多木作,所以性价比还好。为了让我们放心,潘总带我们去过工地,虽然他很忙,但是每次只要有问题问他,他总是秒回。9.26开工,我们家户主拿着火把暖房,祝愿新家红红火火。
![]()


我来说两句


来说两句吧 ...
点此查看全部 101 条神评论>>




锅底上善若水
婺江南人
净相石材经营部
蓝蓝天天
迅哥兒
我一直在角落
山青
建国宝宝
ooop12
毛敏敏




