立即下载
浙中在线 | 装修大本营 |
2021-02-04

第137期【小编探家】:岩板背景墙,全屋艺术漆,墙地砖一体,流行款在他家怎么这么好看!

金小家
22814 59



———— 新家简介 ————
装修小区:保集外滩
户型面积:136平
装修风格:现代轻奢
装修公司:明家装饰
设计师:邢笑林
半包预算:13万5千
(家具家电主材不含)

本次探家的业主是位非常健谈友善的新晋奶爸
他家的装修风格和一些细节很合小编的审美
整套下来的总花费也比较高
一共是大概60万不到

业主大方地给我们分享了他家装修花费的清单
例如阳光房,蒸烤箱一体机,地砖,家具等等的花费
都一项项列出了
有需要参考的可以添加
金小家微信(jj05790579)询问

那么就让我们一起来看看这家现代轻奢风格的装修效果吧




全部评论 只看楼主

我来说两句


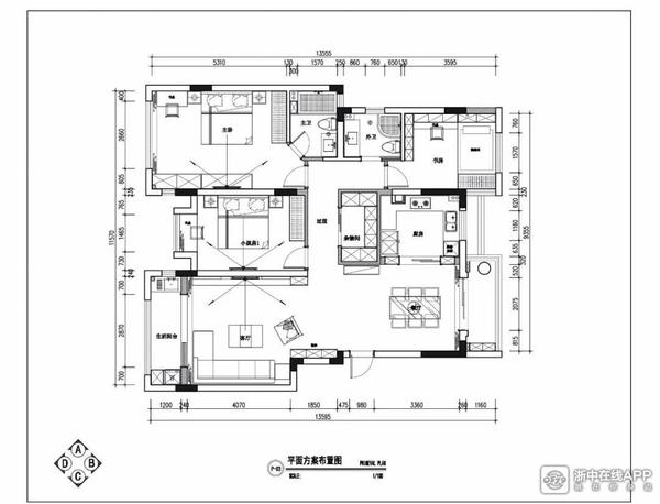
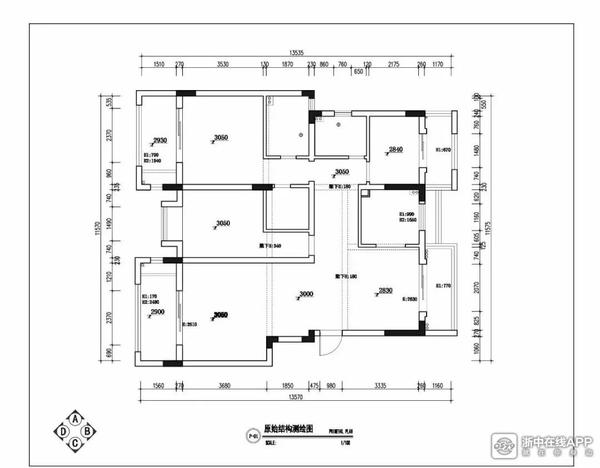
  • 原始结构图


    平面布置图

    1、本套装修对于户型的改动还是比较大的。过道的位置往主卧方向整体移动,将衣帽间从主卧里移了出来,放在卧室的对面,也就是过道的右手边。
    2、阳台内包使得客厅空间更加开阔,视觉能一直延伸,眺望到窗外的风景,给人的感觉非常舒服。
    3、为了有一个更宽敞舒适的厨房,业主将厨房的位置朝餐厅做了部分外扩,改造后厨房大概7平米的空间U形橱柜做了一周还很宽敞。


    效果图


    效果图









    1楼 2021-02-04 09:20

    评论



  • 一进门最吸引我的是右手边的换鞋凳和穿衣镜。把长形的全身镜嵌入鞋柜里解决了镜子比较难安置的问题,出门前在玄关位置检查仪容仪表既方便,效果又好,多全其美



    鞋柜底下留了大概10公分的空隙,可以藏下一溜儿的居家拖鞋,既美观,又实用。


    2楼 2021-02-04 09:23

    评论



  • 客厅也太大了吧!小家一进门就没见识地发出了惊呼。业主告诉小编这套房子上证136方,套内121方,本身就是大户型。不过同等户型下,这家的客厅给人感觉是要更为宽敞一些,就像男业主的个性一样,非常地爽利,开朗。



    小编总结了一下大致是以下几点优势成就了这个优秀的大客厅。
    1、休闲阳台内包,扩大了面积的同时,视觉上不会造成隔断,显得格外通畅。
    2、沙发背景墙和电视背景墙都是整面墙面,这样大面积的铺贴视觉上进一步扩展了空间感。
    3、浅色系的墙面和地面无形中拉伸了人眼的视觉感受
    4、136方的户型很多开发商都会做成四房,这家设置的是三房,客厅大些也是应该。



    这家的电视背景墙铺贴了整面的岩板,加上内嵌的大屏电视给人感觉非常大气。三块岩板连纹拼接纹路流畅精美,不仔细看小编还以为是整块一体的。





    客厅选的是一款气派的深墨绿意式沙发,像是盘踞在鞋柜和窗帘之间,尺寸刚刚好,想必是做鞋柜之前就选好了款式预留了尺寸。





    洗衣台盆正前方有一扇小窗户,也是有点新颖别致。左边墙上还装了壁挂式洗衣机,家里有婴儿孩童的是很用的到的呢。






    洗衣机
    品牌:小天鹅
    价格:4999RMB

    烘干机
    品牌:小天鹅
    价格:7999RMB


    3楼 2021-02-04 09:28

    评论



  • 餐厅的灯饰和客厅、次卧的是业主成套从网上购买的,暖色的光泽很适合用餐氛围。餐椅橙色和深灰经典的撞色搭配,效果很出挑,高级感和时尚感俱全,同时活跃了愉悦轻快的餐厅气氛。



    餐椅的质感非常好,外观的设计也很优雅,有喜欢的网友可以联系小编(jj05790579)询问购买方式哦。



    餐厅的柜子由两列每层装有灯带的玻璃门陈列柜米色定制柜组合而成,两者的搭配既有简约时尚的一面,又有高调轻奢的一面,很在小编的审美点上。这样的餐边柜设计既方便拿取,颜值又颇高。



    餐厅外边的北阳台专门开辟了一个角落做了一个立体猫舍。萌宠也拥有自己的豪宅啦。







    餐桌椅+沙发
    品牌:美迪
    价格:36000RMB

    成套灯饰
    品牌:未知
    价格:8000RMB

    4楼 2021-02-04 09:32

    评论



  • 主卧采用无主灯设计,按照业主需求及卧室面积来设计光源,总共有1盏门厅灯,6盏顶灯,2盏悬挂的细线床头灯



    卧室整体灰色系。深黑灰色的皮质床加床头软包质感很好,目测一定很舒服。业主说梦神家的床加上床垫一套合计1万4,价格果真也是可观。



    全屋的柜子(除了厨房的橱柜)是业主找朋友从武义定制的,一共花了7万多。橱柜看着是同一色系,款式也很统一,但却比较特殊,是装修启动前在维登定制店花了一万七定下的。折算来看两者差价有好点。
    所以说全屋定制作为装修大头,下定时千万不要草率。可以扫描下图二维码添加小编微信:jj05790579,小编按照您家的装修需求,给您推荐几家适合您需求的全屋定制商家。





    成品床
    品牌:梦神
    价格:20000RMB
    (主卧+儿童房)

    全屋定制
    品牌:百合
    价格:71500RMB


    5楼 2021-02-04 09:35

    评论



  • 次卧的床同样选择的是皮质软包床。小编发现床的高度偏矮一些,询问了业主之后,得知这是给宝宝准备的儿童房,为适应小豆丁的身高专门选的,实在是很贴心又有爱了



    窗户边是一张定制的同样适用于小朋友身高的小书桌,拿飘窗的位置做书桌,房间里不会出现家具的边角,既省空间,做作业时采光,视野又好。



    6楼 2021-02-04 09:37

    评论



  • 书房的两面墙是米色柜子,一面墙是带些颗粒感花纹的艺术漆,另一面则是大窗户。



    艺术漆的花纹不是很明显,但这哑光的色泽也是很清爽大气。



    7楼 2021-02-04 09:39

    评论



  • 业主将厨房做了外扩,加上大窗户采光加倍,以及米色橱柜+灰白色地砖的浅色系扩大空间感的效果加持,显得厨房空间非常的宽敞明亮。



    厨房配备了内嵌式的四门大冰箱,内嵌式洗碗机,内嵌式蒸烤箱一体机,俨然就是一个令人歆羡的现代化大厨房。




    内嵌式冰箱
    品牌:卡萨帝
    价格:9999RMB

    8楼 2021-02-04 09:41

    评论



  • 卫生间选择了墙地一体的瓷砖铺贴,效果好得令人惊喜。之前小家一直不能理解地砖上墙怎么就成潮流了,看了这个卫生间算是get到墙地一体的优势了,效果非常大气美观,装友们可以学起来哦



    看到窗户下面安装在离地30cm位置的五金件了吗,这是设计的专门摆放洗澡拖鞋的地方,是不是很实用?强烈推荐给大家。




    9楼 2021-02-04 09:43

    评论

  • 很开心通过照片和文字去记录
    每一个新家的蜕变和成长

    希望这些简单的内容能给装修路上的你,
    带来一些灵感
    如果你也愿意来分享你的新家
    可以跟我们联系(微信号:jj05790579)
    将你的小屋故事连载到
    浙中在线装修大本营
    让更多的人感受到你的快乐


    10楼 2021-02-04 09:46

    评论

大家都在看
最热金哇圈

国有土让整栋的房子,一到五楼上证400平,六楼是赠送,还加装了电梯,带六个车位,西边套,可自住可出租可办公

杨会强

2

欢迎关注浙中在线金哇圈!

浙江金华小九妹

2

欢迎关注浙中在线金哇圈!

涛宝

1

欢迎关注浙中在线金哇圈!

涛宝

1

欢迎关注浙中在线金哇圈!

涛宝

1

欢迎关注浙中在线金哇圈!

涛宝

1

#原创书法#

丰氏好男儿

1

宵夜

小曾同学

1

欢迎关注浙中在线金哇圈!

我一直在角落

88

欢迎关注浙中在线金哇圈!

和尚银

88

触屏版 / 电脑版
分享成功