立即下载
浙中在线 | 装修大本营 |
2021-03-19

第25季:【茂新四季枫景】懒人开工了!5室2厅3卫,现代简约,装起来!9.19更新:毕业验收咯

khxsyc
34670 202
  所在小区:茂新四季枫景
  建筑面积:107+90(平米)
  房屋户型:5室2厅3卫
  开工日期:2021-3-1日
  装修方式:半包
  装修预算:35万
  装修风格:现代简约
  装修公司:自装

房子不贵,但装修却很费钱,既然买了这套房子,那就装起来吧,闲置才是最大的一种浪费!
我和爱人都是上班族,没多少工夫能去折腾,于是我们请了一个懂装修的人,施工和监管都由他全权负责,懒人只能选择懒人的办法,我始终相信这么一句话:只要思想不滑坡,办法总比困难多!

全部评论 只看楼主

我来说两句

  • 虽然是自装,仪式可以简单,但不能没有! 搞个仪式,图个吉利嘛!
    正式开工那天,我们简单的挂了条  “ 小 横 幅 ”,找了个小榔头,我本人亲自上马了,使劲的敲了个几锤! 哎,好累啊,这墙也太结实了! 我是老了,锤不动了,这活还是交给专业的人来锤吧,我就是过来打酱油的!


    1楼 2021-03-19 10:24

    评论

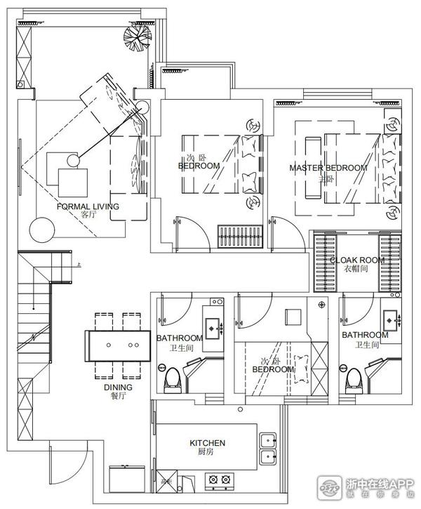
  • 这是房子的平面图,供大家检阅!
    房子是顶层+阁楼模式,所以有上下两层,楼下是主房,方方正正的,楼上是阁楼。

    阁楼是一种斜坡顶,中间部分的高度很高,延伸到四周高度会逐渐变矮。我们把中间一大部分做了吊顶,这样能使阁楼空间看上去会平整很多。
    通过吊顶,中间
    好大的一部分也都能有正常高度,这一点令人很欣慰,这样在阁楼上就能隔出一个很大的,方正的,高度也正常的房间来。至于边缘部分的空间,由于高度偏低,不能作为正房使用,有的被做成了书房,有的被做成了储物间,有的被做成了孩子的玩具房,这就是有阁楼的好处,阁楼空间足够大,能让你放上很多东西,从而让楼下主房变的更整洁,更清爽!
    听很多装修达人说,斜坡顶有一个好处:积水少,不太会漏水!





    2楼 2021-03-19 10:25

    评论

  • 自从那天对房子敲了几锤后,我胳膊都生疼了,后面我们基本上没再去管过了,专业的事要交给专业的人去做,既然请了监工,那就去信任他吧,毕竟关系在那,这点基本的信任还是要有的!我们只负责付钱以及对大方向的把控。
    人与人之间,需要多一点信任,为了一点得与失,就和你的亲人或朋友唠唠叨叨,争争吵吵,甚至闲言细语,横眉怒骂,值得吗?又图个啥呢? 做人何必如此较真,有时候活的简单一点,糊涂一点,反倒能让你更开心,更懂得享受生活的美好!

    这图片是3月14日的时候,我去了趟工地才拍来的,发现墙都快敲好了,楼梯也都架起来了,那天正好还有个师傅在里面砌墙,砌墙师傅压根就不认识我这个房东......
    哈哈,好吧,我就是个甩手掌柜,只负责偶尔过来微服私访一下!





    3楼 2021-03-19 10:46

    评论

  • 这师傅不靠谱,用泡沫砖
    4楼 2021-03-19 11:11

    评论

  • :这师傅不靠谱,用泡沫砖 (2021-03-19 11:11)


    嗯,可能是泡沫砖比较轻吧,隔墙无所谓了,听监理说,这种砖便宜,施工也快,人工也能省一点,你看,有这么多的好处呢,所以咱就不去较真了,不能和钱过不去啊,能省钱就好!

    5楼 2021-03-19 11:20

    评论

  • 这房子在装修之初,我们是花了几千大洋,找人简单设计过效果的,虽然有很多不够理想的地方,但也懒得麻烦人家改来改去。
    这效果图,就只供装修参考吧,有些东西,可以等到实装的再去调整,并不是所有的效果,都是能实装出来的,后期再根据预算和实际的施工情况做调整吧。
    设计过的效果图,稍后奉上,供大家检阅!


    6楼 2021-03-19 13:47

    评论

  • 这是客厅和餐厅的效果图。
    客厅和餐厅都不大,个人觉得,设计师放上去的沙发、电视柜以及茶几,都是迷你版的,将来实物摆进去后,
    空间上估计会比效果图上更挤一点!




    VR三维效果图
    https://www.kujiale.com/xiaoguotu/pano/3FO4T51GXOTJ


    7楼 2021-03-19 13:48

    评论

  • 几个房间的效果,也大概设计了一下,由于房间比较多,每个房间的结构和面积差异比较大,所以风格上也采用了不一样的设计方案。
    8楼 2021-03-19 13:53

    评论

  • 小男童的儿童房,儿童房面积有点小,安排一个衣柜,床的话,估计只能买1米2的




    VR效果:
    https://www.kujiale.com/xiaoguotu/pano/3FO4OBPGG67R



    9楼 2021-03-19 13:53

    评论

  • 这是主卧,主卧的床头背景设计了软包效果,主卧内还配有衣帽间以及内卫,这间房,绝对是这套房子的王中王!
    看了这间房后,我家儿子非常的不满,非常的愤愤不平,因为他那间儿童房实在是太小了!
    没办法,差距就是这么的大,谁让我是老子,你是孙子呢。哈哈,家中地位不一样




    VR效果:
    https://www.kujiale.com/xiaoguotu/pano/3FO4OD9D5GSS



    10楼 2021-03-19 13:54

    评论

大家都在看
最热金哇圈

欢迎关注浙中在线金哇圈!

锅底上善若水

4

早上好!

婺江南人

4

#嘉兴建材#花岗岩#石材加工

净相石材经营部

4

欢迎关注浙中在线金哇圈!

蓝蓝天天

4

欢迎关注浙中在线金哇圈!

迅哥兒

4

欢迎关注浙中在线金哇圈!

我一直在角落

3

欢迎关注浙中在线金哇圈!

山青

3

欢迎关注浙中在线金哇圈!

建国宝宝

3

天天签到,领取专属福利

ooop12

2

欢迎关注浙中在线金哇圈!

毛敏敏

2

触屏版 / 电脑版
分享成功