立即下载
浙中在线 | 装修大本营 |
2021-04-28

【江上明月】100平北欧现代混搭风小家毕业啦!

椰子bot
21456 42
       小家是19年8月份交付的,19年五月就先接触了设计师,9月份设计完成后开始施工了,因为工作地离家比较近,家中又有熟悉的工人(虽然基本上都是浦江请过来的),所以选择了清包,当然自装的情况下小插曲会多一些,工期也会相对慢一些,前前后后从设计到施工到软装完成也用了一年左右的时间。入住也快半年时间了,上一波迟来的毕业照。
  
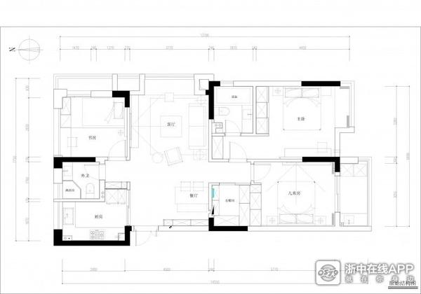
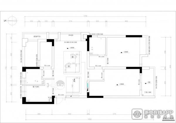
先上户型图



户型的改动其实不是特别的大,都是根据自己的诉求进行设计的。
毕业照来了
客餐厅



















开灯和不开灯的对比图也来一个



  
主卧






  
儿童房






  
书房






  
不喜勿喷哦~

全部评论 只看楼主

我来说两句

  • 欢迎楼主加入我们友爱的大家装,我是浙中在线家居小编金小家(jj05790579),加小编微信,之后日记有更新可以先微信小编哦!!!


    1楼 2021-04-28 13:11

    评论

  • 和效果图还原度很高诶
    2楼 2021-04-28 13:13

    评论

  • 很耐看
    3楼 2021-04-28 13:19

    评论

  • 颜值很高啊,装修花了多少?
    4楼 2021-04-28 16:08

    评论

  • 艺术漆好看
    5楼 2021-04-28 17:49

    评论

  • 哪位设计师可以介绍一下吗?
    6楼 2021-04-28 17:50

    评论

  • 7楼 2021-04-29 08:08

    评论

  • 很漂亮,能说下几栋么?
    很漂亮,能说下几栋么?
    8楼 2021-04-29 12:52

    评论

  • 客厅的沙发椅好有感觉啊
    9楼 2021-04-29 14:08

    评论

  • 照片拍得好好看
    10楼 2021-04-29 14:11

    评论

大家都在看
最热金哇圈

#嘉兴装修建材#花岗岩石材#晒晒上班路上的指示牌,送相框+笔记本组合礼#

净相石材经营部

5

欢迎关注浙中在线金哇圈!

每天想吃肉

5

叮铃林

4

朋友们早安

蓝天阳光

4

青山入画,满目皆清欢。 #山水美景#自然风光 #青山秀丽#静心赏景 #人间清宁

智航

4

万般行善,福自临门。 #心善有福#行善积德 #天道酬善#善恶有报 #自有天佑

智航

4

#一张图晒出今天的天气!#

江南细竹

4

#晒晒今天的咖啡#

江南细竹

4

#忽而今夏,金华入夏啦!#

江南细竹

4

欢迎关注浙中在线金哇圈!

我一直在角落

4

触屏版 / 电脑版
分享成功