立即下载
浙中在线 | 装修大本营 |
2021-06-22

第145期【小编探家】:步阳华府142方脏粉+功能沙发,这套美式太绝了!

金小金
50148 38
———— 新家简介 ————
装修小区:步阳华府
户型面积:142平
装修风格:现代美式
装修公司:明家装饰


小编有话说:现在去探家风格大多是现代、轻奢、极简,这套是现代美式,格调十足又不失个性~过道式衣帽间、超大阳台卫生间、超洋气的脏粉配色、舒适为王的功能沙发……N多亮点,快跟着小金的镜头一起看看吧~

号外:添加小金微信jiaju05790579拉你进装修大本营讨论群哦!


全部评论 只看楼主

我来说两句

  • 评论

  • 01
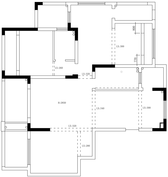
    平面图

    他们家户型上优化的还是非常多的,主卧阳台变卫生间,卫生间调整为过道式的衣帽间,包括床方向也做了调整;客卫调小给餐厅腾出空间,部分区域做餐边柜,干区外墙做了玄关;所有房间阳台内包扩大空间面积。




    2楼 2021-06-22 09:38

    评论

  • 02
    客厅


    142方的户型一体式的客餐厅面积很大,还是非常舒适的。沿墙分别是入户、玄关柜、部分脏粉色墙面、带隐形门的电视背景墙。个性的脏粉色墙面活跃空间, 顶面是无主灯设计,没有做复杂的造型。



    客厅放置了3+1+1的功能沙发,3+1是头层牛皮的材质坐感超舒服~还有一张网红布艺沙发单椅,舒适为王,上班归来只想躺在柔软的沙发上!客厅阳台内包,落地窗设计,使整个客厅光线明亮通透。



    背景墙还差一幅画,还在海淘中,你觉得适合放什么?






    电视背景墙原先计划是放岩板的,纠结电视会盖住没有必要,最后直接定了一套80多寸的大电视,真香!地砖是超有纹理感的设计款,客厅中心区域搭配了同系列的地毯砖,怕地毯不好打理又想出效果的可以这么搭配哦!



    阳台设计了洗衣机+干衣机以及柜子的组合,储物空间满满,享受生活的男主人还放了一张功能单椅,躺在上面看看风景也是极好的!



    3楼 2021-06-22 09:38

    评论

  • 03
    餐厅


    餐厅有一个通往书房的拱形门,中间用了脏粉色点缀,少女心爆棚~~



    餐厅选用了美式经典的棕色皮质座椅+圆桌,家具就是要舒适!旁边依墙设计了酒柜,冰箱上部空间也利用起来做了柜子,整体性更强。嵌入式灯带和玻璃柜门拉升了整体空间的颜值~



    靠近入户的餐边柜设计了玻璃柜门和普通柜门的组合,中间留白方便小物件的收纳~


    4楼 2021-06-22 09:38

    评论

  • 03

    书房


    开放式的书房连接着主卧、小房间以及洗衣阳台。顶面设计了长短不一的线性灯,个性、前卫、视觉效果极佳!




    整屋最大面积的脏粉色墙面就在书房,旁边设计了一组书柜。值得一提的是他们家全屋的柜子都是采用了实木材质,工艺和细节都非常好~




    5楼 2021-06-22 10:07

    评论


  • 04
    厨房


    厨房空间不大,色调是全屋统一的白色,U字形橱柜简洁大气水槽是男主人精心挑选的石英石材质,大单槽超大气。燃气热水器也放置在了厨房~


    6楼 2021-06-22 10:08

    评论


  • 05
    主卧

    卧室床买的都是皮床,灯具是女主人精挑细选的,小金拍了细节图,喜欢不?




    过道式的衣帽间是不是超霸气,主卧的设计可是和设计师沟通N回最终确定的,进门是衣帽间,往前是床,衣帽间往前就是卫生间,动线上也比较合理。



    沿着衣帽间走就到了内卫,大浴缸、智能马桶,大阳台,超舒服~~



    7楼 2021-06-22 10:19

    评论

  • 06
    小房间+次卧

    小房间是从书房进的,房间不大,设计了整墙的衣柜和浅色的床。而次卧位于电视背景墙后方,还有一个阳台~





    次卧深色的皮床质感很好,两盏暖色的吊灯给房子增加了一丝温馨,南向的阳台采光良好,做了一个书桌,学习办公两不误~家里的第3张功能单椅也放在了这个房间!


    8楼 2021-06-22 10:19

    评论



  • 07
    卫生间


    客卫位于餐厅旁边,干湿分离,简单大气!



    9楼 2021-06-22 10:32

    评论

  • 很开心通过照片和文字去记录
    每一个新家的蜕变和成长
    希望这些简单的内容能给装修路上的你,
    带来一些灵感
    如果你也愿意来分享你的新家
    可以跟我们联系(微信号:jxj05790579)
    将你的小屋故事连载到
    浙中在线装修大本营
    让更多的人感受到你的快乐


    10楼 2021-06-22 10:34

    评论

大家都在看
最热金哇圈

欢迎关注浙中在线金哇圈!

迅哥兒

5

欢迎关注浙中在线金哇圈!

山青

3

欢迎关注浙中在线金哇圈!

毛敏敏

3

欢迎关注浙中在线金哇圈!

黄艳

3

保集庄园,纯别墅区,这个双拼,位置好,地下室直通,2180万

和谈谈说说

2

移动宽带500M两年500元,平均每月20.84元(一杯奶茶钱) ,需要可以直接扫码下单!

林子浩呀

1

金东区,一楼花园,带车位,带装修,楼间距宽的不要不要的,而且是小区中间位置,横厅户型,三房两厅两卫,看房方便哈

杨会强

1

兰溪自家白枇杷有需要联系,皮薄肉质鲜美,水分十足,早上现摘,下午送货。有需要联系。

粥粥88

1

欢迎关注浙中在线金哇圈!

涛宝

1

欢迎关注浙中在线金哇圈!

涛宝

1

触屏版 / 电脑版
分享成功