第25季:【御西湖】125平现代简约风,装修是一种修行!10.13更新:客厅瓷砖好像翻车了
| 所在小区: | 御西湖 |
|---|---|
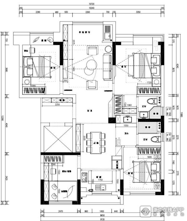
| 套内面积: | 125 (平米) |
| 新房户型: | 四居室 |
| 开工日期: | 2021-7-29 |
| 装修方式: | 半包 |
| 装修风格: | 现代简约 |
| 装修公司: | 陆心 (无装修公司的填自装) |
选装修公司,首先我妈联系了某大牌装修公司,来的设计师当场提了一些不靠谱的想法(不考虑实际尺寸能不能实现),瞬间让我觉得不靠谱,后期看设计图我也拒绝了。
同天,我还联系现在某当红装修公司,交谈感觉上很实在,后来去公司看图纸发生了一点小插曲,他们老板的态度让我觉得很靠谱,瞬间让我觉得就他们公司了!后来带了图纸先回家了!
某天和表姐聊天介绍了陆心,得知有现成户型设计图,于是抽空就过去看图纸和报价。他们的老马设计师挺有想法的,说的一些意见也很中肯,和之前公司比是两种不同的方案,其实我更喜欢老马的设计,更有想法,之前的就感觉比较随意没走心,但是喜欢上面那家公司的靠谱的口碑和木工工艺。于是,也带了图纸先回家考虑!后来还是选择了陆心!
然后就去砍价,给了一个符合心里价位的价钱(砍价真的不能带老公这种物种的猪队友),至此,装修公司和方案选定!
![]()



我来说两句




来说两句吧 ...
点此查看全部 72 条神评论>>




蓝蓝天天
智航
智航
迅哥兒
智航
智航
智航
是大




