立即下载
浙中在线 | 装修大本营 |
2021-11-24

第25季:【步阳华府】128平四居室,90后打造暖暖的现代美式品质住宅,12.6更新明天开工

张。
7955 41
所在小区:步阳华府
套内面积:128 (平米)
新房户型:四居室
开工日期:2021-11-24
装修方式:半包
装修预算:40 (万)
装修风格:其他
设计公司:易琢装饰设计
装修公司:易琢装饰 (无装修公司的填自装)
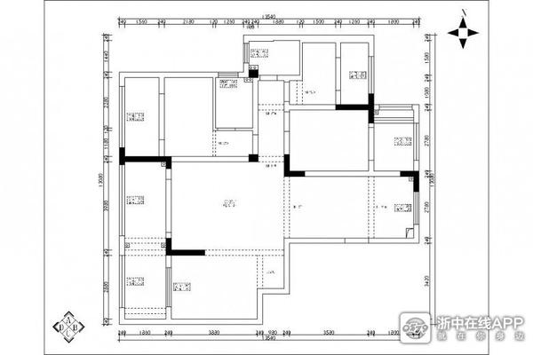
原先的户型结构真的是犄角旮旯,能敲的墙都敲完了。进门就是餐厅,而且很长又窄,如果不改造餐厅基本没办法使用。经过户型改造,空间一下子打开了!





全部评论 只看楼主

我来说两句

  • 欢迎楼主加入我们友爱的大家装,我是浙中在线家居小编金小川(jj05790579),以下是家装日记网友专属福利合集,加小编微信,之后有装修问题、日记有更新可以先微信小编哦!!!我来加分(备注您的论坛ID,方便我辨识哦~):

    1、第25季【家装日记征集大赛】火热征集中~欢迎加入装修大本营,让装友大神们带你飞!http://bbs.0579.cn/read-htm-tid-3187862.html

    2、万元征集家装日记第25季开始啦!记录点滴塑造新家,快乐装修拿大奖~http://bbs.0579.cn/read-htm-tid-3136686.html

    1楼 2021-11-24 10:36

    评论

  • 欢迎新同学
    2楼 2021-11-24 10:36

    评论

  • 墙都拆完了,变大好多
    3楼 2021-11-24 10:45

    评论

  • 结构调整了空间大多了,餐厅好看
    4楼 2021-11-24 10:48

    评论

  • :墙都拆完了,变大好多 (2021-11-24 10:45) 


    是的是的,我特别满意餐边柜,可以储物又可以当背景
    5楼 2021-11-24 10:54

    评论

  • :墙都拆完了,变大好多 (2021-11-24 10:45) 


    是的是的,我最满意是餐厅餐边柜了,可以储物,又可以当入户玄关背景
    6楼 2021-11-24 10:58

    评论

  • 7楼 2021-11-24 17:04

    评论

  • 哇哦
    8楼 2021-11-24 17:06

    评论

  • 效果图挺好看的
    9楼 2021-11-24 17:06

    评论

  • 10楼 2021-11-24 17:06

    评论

大家都在看
最热金哇圈

欢迎关注浙中在线金哇圈!

蓝蓝天天

3

#嘉兴建材#花岗岩#石材

净相石材经营部

3

欢迎关注浙中在线金哇圈!

迅哥兒

2

欢迎关注浙中在线金哇圈!

迅哥兒

2

仅作文化视角分享 四檀理念圆融相通,不离当下一念初心。以信愿行修持内心,祈愿心安顺遂,怀九品莲开的美好期许。#四悉檀文化#净土文化分享 #修心养性#心安即是归处#传统文化美学#心灵疗愈

智航

2

欢迎关注浙中在线金哇圈!

我一直在角落

2

早安!

婺江南人

2

广东的天气忽冷忽热

小曾同学

1

欢迎关注浙中在线金哇圈!

叮铃林

1

欢迎关注浙中在线金哇圈!

山青

1

触屏版 / 电脑版
分享成功