立即下载
浙中在线 | 装修大本营 |
2022-01-26

第174期【小编探家】:御西湖115方现代简约,100%的效果图还原度颜值绝了!



———— 新家简介 ————
装修小区:御西湖
户型面积:115平
装修风格:现代简约
装修花费:40万+
装修公司:几木设计
设计师:章晓

菜老师有话说:本期的小编探家又解锁了新小区,来到了【御西湖】。这是一套115方的现代简约风格新家,设计师在布局设计及色彩搭配上的功力极为深厚,从进门开始就是视觉盛宴,素色与亮色的搭配犹如动静的组合让人想要细细的品味,具有视觉冲击感又有持久的观赏性,是一套亮点满满的佳作!接下来就带大家看看实景效果吧~(添加我的微信::jia05790579,带你看遍金华的美丽新家

点击这里,电梯直达
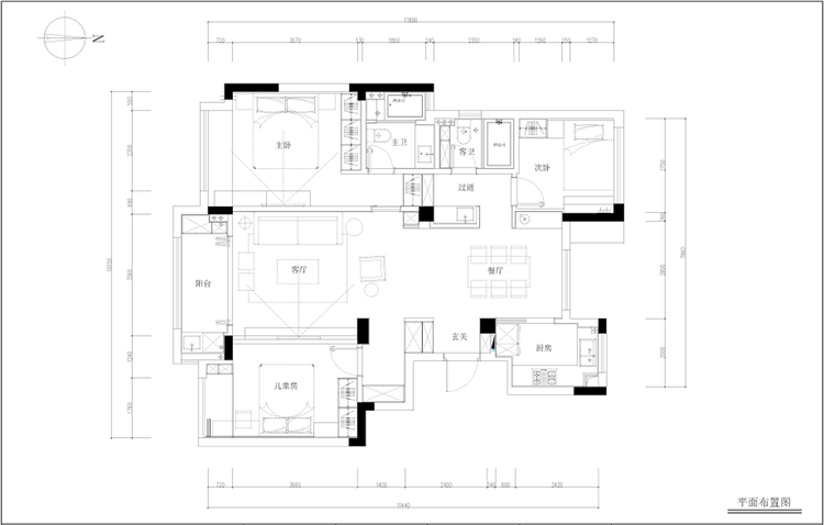
户型图  
入户
客厅
餐厅
厨房
主卧+内卫
儿童房
次卧
外卫


往期回顾】
第173期【小编探家】:精致软装搭出绝美原木风,这套新家作业可以抄!

第172期【小编探家】:【沁兰名邸】108平现代简约全包新家,这效果还原度你打几分?

第171期【小编探家】:花百万打造200方现代轻奢,跃层客厅和环形吊灯的搭配简直绝了!


全部评论 只看楼主

我来说两句


  • 整个布局的改动不大,但结构上的改动还是蛮多的;首先,入户整修的过道位置墙体做了改动,营造了玄关的效果,背面设计了外卫干区,也对外卫做了遮挡。其次儿童房房门内收,外面设计了储物柜,和入户鞋柜结合一体,让空间过渡更舒适。
    ▲效果图▲

    1楼 2022-01-26 10:16

    评论


  • 入户设计了鞋柜,平板门到顶,中间和底部镂空,呈上中下结构的柜体满足各种需求。为了和整体色调统一,入户门也做了喷气改色,果然效果更好了!从餐厅角度看过来,色彩统一度很高。


    进门正对的方向设计了收纳柜及装饰灯,营造了玄关的感觉,让人眼前一亮!整体木饰面延续到沙发背景,木色、黑色做交叉搭配,碰撞出来的视觉效果超棒!

    2楼 2022-01-26 10:16

    评论

  • ▲效果图▲

    ▲实景图▲
    通过效果图和实景图的对比可以直观看出设计师的功力,对比硬装部分更重要的是软装,不仅家具、灯饰的款式颜色百分百还原,就连装单椅、饰画、小台灯也几户一样!设计师说得到这样的效果离不开业主的信任,在充分信任的基础上能够筑造出这样美好的新家,自己的用心和努力没有白费,是对他最大的支持。

    沙发背景是木栅格的一种,采用大面积的黑色也和另一头餐厅区域的边柜颜色多对称,而沙发跟挂画的颜色又刚好做了调和,深浅搭配,每一个色彩的过渡都是设计师经过反复推敲,以求达到最好的效果。
    在柜子右侧的黑色栅格还隐藏着主卧,这样的色彩碰撞简直太绝了!

    3楼 2022-01-26 10:16

    评论



  • 餐厅区域是四人位的餐桌,长款吊灯也是完美还原了效果图的设计。靠窗一侧预留了餐边柜的位置,使用上更为方便。窗台做了铝合金的包边,窗帘则选择了蜂窝帘,增强整个家的现代感。

    看似简单的餐桌其实细节满满,岩板台面光亮 大气,餐椅造型独特,实木椅身凸显质感。
    4楼 2022-01-26 10:16

    评论


  • 厨房同样是白色平板门,厨柜、台面都是白色主调,就连冰箱也是纯白,把简约气质发挥到了极致。墙砖选择了黑白纹路的造型则刚好起到了衬托的作用。


    厨房移门不是黑色哑光款而是选了银色边框的,和整个空间的色彩融合更加完美。这样的窄边玻璃移门颜值满分!
    5楼 2022-01-26 10:16

    评论

  • ▲效果图▲
    ▲实景图▲

    主卧还原度也很高,背景是波浪板和黑色瓷砖的拼接,搭配金属卡条和灯带,层次感很强!波浪板是木格栅的一种,也是实木材质的,整个家各个区域的背景都有木格栅的元素,但都采用了不同的款式,通过不同色彩去组合搭配出不一样的感觉。

    小吊灯的搭配也是点睛之笔,装饰性很强,让上下的背景组合更加浑然一体,同时也增加了立体感。
    内卫是正方形的区域,不大的空间功能性齐全,定制的洗手台盆尺寸完美贴合,台面上不乏置物空间,智能镜也是绝绝子,墙面的竖条纹瓷砖和白色卫浴形成视觉交叉,不规则但很有序。
    6楼 2022-01-26 10:18

    评论

  • ▲效果图▲
    ▲实际图▲
    儿童房的需求比较多,要有书桌、有衣柜、有黑板墙、还要拥有生机和活力。带着这些需求,设计师也是交出了完美的“答卷”。书桌连着飘窗一体,,床头背景上方木色连着另一侧的床头柜及衣柜,设计了线性灯带,整体简洁又处处暗藏“心机”。连床品都是精心搭配~蓝色区域墙面就是整块的黑板漆,满足爱涂爱画的需求,释放孩子的天性。
    床头柜和衣柜相连的设计真的很棒,但是这个柜体必须要木工手打哦,好手艺的师傅也很重要。同时还需要做混油,要和衣柜门板的颜色做到一致,对于颜色的把握力要求很高。

    7楼 2022-01-26 10:22

    评论


  • ▲效果图▲
    ▲实景图▲
    次卧空间相对局促一点,所以把床靠着窗摆放,在原本电视背景的位置设计了书桌及置物隔板,兼具功能性和实用性。床头背景一侧也设计了到顶的柜子,储物空间还是不能少哦。跟客厅一样,次卧也选择了蜂窝帘,遮光效果是可以根据不同空间的需求去选择的,所以不用担心,实物颜值真的很高,和现代感的家极为相配。


    8楼 2022-01-26 10:23

    评论




  • 玄关背后也是外卫的干区,对外卫起到了遮挡作用呢,干湿分离的设计也更实用。六边形的花砖起到了点缀的作用,想要让卫生间更生动,都可以参考搭配一点花砖哦。
    9楼 2022-01-26 10:23

    评论

  • 很开心通过照片和文字去记录
    每一个新家的蜕变和成长
    希望这些简单的内容能给装修路上的你,
    带来一些灵感
    如果你还想看新家视频
    或者跟我一起去新家现场参观学习
    可以添加我的微信进群
    (微信号:jia05790579)
    带你看遍金华的美丽新家


    10楼 2022-01-26 10:30

    评论

大家都在看
最热金哇圈

欢迎关注浙中在线金哇圈!

迅哥兒

4

#迎接2026#

江南细竹

3

#为今天拍张照片#

江南细竹

3

欢迎关注浙中在线金哇圈!

蓝蓝天天

3

欢迎关注浙中在线金哇圈!

毛敏敏

3

欢迎关注浙中在线金哇圈!

山青

2

一刹,一世界; 一香,一浮生。#古刹寻心#烟火见禅#崖壁听风#心安之处#千年回响

智航

2

欢迎关注浙中在线金哇圈!

涛宝

2

朋友们早安

蓝天阳光

2

欢迎关注浙中在线金哇圈!

和尚银

2

触屏版 / 电脑版
分享成功