立即下载
浙中在线 | 装修大本营 |
2022-03-04

【大木匠全屋定制】杯 第26季:【御西湖】138平奶油系极简原木风即将上路,4.25更新:加更全屋智能的选择应用

盛子时
15445 58
  • 所在小区:御西湖
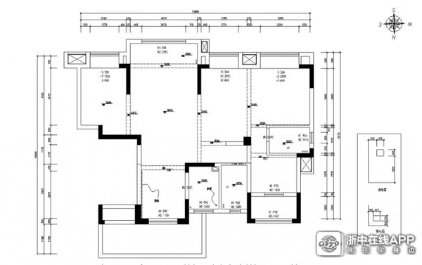
  • 套内面积:138 (平米)
  • 开工日期:2022-3-11
  • 装修风格:原木极简
  • 装修公司:铭都装饰半包
  • 设计师:何跃峰(★★★★★推荐)
  • 平面图走一波

  • 装修效果图:长在我们审美上的效果图上一波



     前言:似乎在装修中,很多人都在追求高级感。有人觉得高级感就是“豪华”,也有人觉得高级感便是“轻奢”。但在我的眼里,高级感就是优雅和契合,只有契合了自己的审美,这样的家才有高级感。
——电梯在此——

——选装修公司,三步骤——  
——2022年3月11日·开工大吉——
——开工第一步·从敲墙开始——
——主材采购篇·风管机——
——主材采购篇·木地板——


全部评论 只看楼主

我来说两句

  • ——选装修公司,三步骤——


    一、选择不要太多,精选对比
           刚定下房就找了小居,推荐2家性价比比较高的装修公司。为什么是两家呢?常说货比三家,但是选择多了,反而有时候不好拿主意。还不如精选2家,直接二选一。

    二、重服务,重细节
          装修公司前期对接,未涉及到真正设计之前,都是差不多的。这个时候,我个人就是比较看重服务和细节。之所以选择铭都,也是这个原因。也是在小居和金小璐璐的推荐下,我选择了铭都装饰的何老师(何跃峰:细心、负责和专业,是我给他的评价。
    理由如下:
    1、现场实际量房(很重要):
          别家都是拿房开发的尺寸图直接找我们沟通的(理由是这个户型他们做过很多),铭都的何老师是现场量房的(可能也是很多家都会现场量),我们理解是哪怕尺寸都是一样的,每一层的格局都是不同的。


    2、设计师现场规划讲解:
           何老师也直接在现场和我们沟通规划,比如厨房,另一家直接说无法放大冰箱,建议用集成灶和水槽一体的洗碗机。用过这两款的都知道是个坑,得避。那何老师是建议我们选上面双开下面三箱的冰箱,容积虽说不能比双开门但是至少冰箱还能放在厨房不占外面空间。洗碗机和燃气灶让我们正常选择,适时考虑放弃蒸烤一体机。(其实我们一开始就未打算用这个,另一家都未咨询就直接否决了我们的想法,这点让我觉着有点不专业)。这里我想表达的是,设计师,不是一味的以客观条件否决客户的想法,而是看过现场后,在现有苛刻条件下转变思路满足客户需求。(也能有理有据的说服客户适时取舍)


    3、设计师=专业的讲解员
         去过装修公司的人都知道,装修公司就是半个工地现场,你想要知道的工艺流程和品质甚至全屋定制的样式都可以一目了然。如果是小白,很容易云里雾里。但何老师,是从设计亮点和难点,然后到尺寸,工艺,材质,都给我们做了一个将近1个半小时很全面的小白级科普,既能懂其中的道道,也明白了什么情况下选什么板材,区别在哪里?钱花在哪里,哪里是重点要投钱和没有必要花钱的地方。至于如何和设计师沟通,我举2个小栗子,仅供参考。


    ①、精问尺寸和承重墙的情况,我家厨房和小次卧比较小,一般人看了设计师的图可能对尺寸问题一笔带过。但是懂行的人,会需要精准的尺寸,然后按自己的经验和市场板材和建材的尺寸估算设计师的设计效果。然后现场打开CDR跟你讲图,因为不知道下一秒客户会提出来要知道哪里到哪里的尺寸是多少(我爸爸就这样,另一家是拿图纸讲解的设计师根本答不上来)。然后我们想拆电视背景墙往前移几公分,这样小次卧就大了,量过房的何老师就知道这是承重墙无法拆动。这就是回到我第一个点(设计师要跟去量房。另一家是不知道的模棱两可的不确定)。


    ②、提得出自己家的问题,然后和设计师据理力争或是被有理有据的说服。比如说我们想要在客厅和阳台那边做一个法式拱门,何老师拒绝了(哈哈哈)我家在二楼,虽然说房间距很大,但是做拱门会影响采光,客厅阳台完全打通既能保证采光也能保证光照等等。还是要回到起点(设计师要上门,至少一次,来看场地,看尺寸,了解光照等细节)。


    最后就是想说,重量房,重现场实勘,然后看设计师是不是有理有据的做设计,能不能迎合你的同时又规避了糟糕的格局,最后就是要取舍,不能什么都要。





    1楼 2022-03-04 10:33

    评论

  • ——2022年3月11日·开工大吉——
          
            之前找了风水师算了一下开工的日子,2022年3月11日8点动工,万事皆吉!铭都也是做了一些轻微的仪式。8点整金锤敲墙,意味着正式入住开工。希望4个月后,能有一番全新的变化。



            简短的开工仪式之后,就是设计师和项目经理对接前期沟通时存疑的问题,并作现场测量,确认。这一步,个人觉着还是有必要的,设计师想法丰富,项目经理固然经验丰富,但也离不开必要的实操核对。之前就说,好的设计师一定是个专业的讲解员,说服员,让业主听懂,项目经理认可,才能顺利开工。好的开始是成功的一半!






    2楼 2022-03-04 10:34

    评论

  • 3楼 2022-03-04 13:01

    评论

  • 原木风忠粉啊
    4楼 2022-03-04 16:20

    评论

  • 是不是老婆选的
    5楼 2022-03-04 16:20

    评论

  • 效果图看着不错的
    6楼 2022-03-04 16:33

    评论

  • 7楼 2022-03-04 16:33

    评论

  • 设计很好看
    8楼 2022-03-04 16:58

    评论

  • 666
    9楼 2022-03-04 17:04

    评论

  • 看着不错哦
    10楼 2022-03-04 17:05

    评论

大家都在看
最热金哇圈

#晒晒我养的花花草草#

清水无双

4

有山有水,上下五层,上证390平,而且还是国有土让的商品房,而且还带电梯井,竟然两百个不到,有想法的扣在评论区

杨会强

4

欢迎关注浙中在线金哇圈!

和尚银

4

欢迎关注浙中在线金哇圈!

我一直在角落

4

#原创书法#

丰氏好男儿

3

欢迎关注浙中在线金哇圈!

和尚银

3

欢迎关注浙中在线金哇圈!

和尚银

3

欢迎关注浙中在线金哇圈!

建国宝宝

2

人家要钱,我的客户免费送

小斯斯同学

2

d0280

2

触屏版 / 电脑版
分享成功