浙中在线 | 大话楼市 |
2022-10-14
均价5080元/㎡起步!金华新增1481套住宅房源
捷克莫扎特
13151
3
浙江金义智园实业有限公司集贤路北安置地块项目建设批前公示发布,项目位于金华金义新区集贤路北侧、正涵街东侧。

规划总用地面积33634.25㎡,建筑密度21.70%,容积率2.40,绿地率35.50%。
本次申请许可范围内:建筑占地面积7299.98㎡,计容积率建筑面积80722.20㎡,不计容积率地上建筑面积1728.73㎡,不计容积率地下建筑面积37138.02㎡

项目规划10栋楼,701套房源,面积80㎡~150㎡不等,主要面积段集中在80㎡~100㎡之间。
该地块成交楼面价1500元/㎡,成交总价12109万元,由浙江金义智园实业有限公司竞得,地块项目为安置回购房,住宅销售价不高于5080元/㎡,单个车位6万元/个。



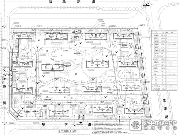
文悦佳苑项目建设批前公示公布,项目位于文悦街以东,仙源东路以南,兰溪街以西,规划道路以北。

规划总用地面积51330㎡,建筑密度18.99%,容积率1.8,绿地率36.83%。
该项目用地性质为居住用地、零售商业用地、人民防空设施,拟建建筑用途为住宅、零售商业、人防。
本期建筑占地面积9749.48㎡,计容积率建筑面积92382.71㎡,不计容积率建筑面积53099.46㎡。

根据该项目出让时的地块须知可知,本地块为安置房项目,地块所有住宅、商业和地下室全部回购(除公建配套设施外),住宅销售价不高于7350元/㎡。政府回购价格为住宅7350元/㎡,商业7350元/㎡,地下建筑3000元/㎡。

项目规划16栋住宅楼,规划户数780户,有75㎡、89㎡、115㎡、125㎡、110㎡、140㎡等户型。


我来说两句
来说两句吧 ...
看更多精彩内容>>




智航
ddy8088
迅哥兒
杨会强
ddy8088




